L'ascenseur de charge électrique sur mesure est un type de monte-charge particulièrement conçu pour le chargement et le transport vertical de marchandises au sein des bâtiments industriels, établissements de santé et commerces de grande distribution des collectivités.
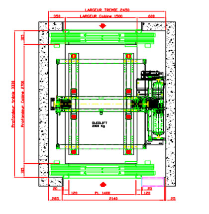
Il s'agit d'un ascenseur classique d'une charge utile de 1050 à 2500 kg avec une hauteur d'arrivée variable selon les charges.
Cet appareil élévateur est conforme à la norme 81.20 sur l'installation des ascenseurs.
Caractéristiques techniques : 
- Charge utile : 1050 à 2500 Kg
- Vitesse : 1 m/s à 1.6 m/s
- Système de commande : variation de fréquence
- Face de service : 1 ou 2 accès opposés
- Cuvette : 1400 mm ( variable suivant charge)
- Hauteur d'arrivée : 3500 mm (variable suivant charge)
- Course maxi : 45 mètres
- Capacité : jusqu'à 26 personnes et plus selon versions
- Norme : 81.20
Avantages : 
- Ascenseur sans local machine
- Gain de place au sein des locaux
- Finition cabine à la demande et personnalisable
- Lisse de protection Boplan
- Porte renforcée
Desserte même face : 
Dessertes opposées :