L'ascenseur très grand volume pour bâtiment industriel est un type de monte-charge d'une grande robustesse conçu pour les sites et entrepôts présentant des flux de marchandise importants.
D'une charge utile de 2500 à 6000 kg selon les versions, cet ascenseur sans local machine présente l'avantage d'un gain de place optimal, toutes ses parties mécaniques et électriques étant intégrées dans la gaine.
L'installation de l'ascenseur classique pour charges lourdes se fait sur mesure de manière à obtenir des cabines aux dimensions et aux finitions adaptées à l'environnement professionnel.
Caractéristiques techniques : 
- Charge utile : 2500 à 6000 Kg
- Vitesse : 0.5 à 1 m/s suivant charge
- Face de service : 1 ou 2 accés opposés
- Système de commande : variation de fréquence
- Motorisation : Gearless
- Cuvette : 1400 mm
- Hauteur d'arrivée : 3800 mm
- Course maxi : 45 mètres
Avantages : 
- Gamme d'ascenseurs sans local machine
- Gain de place : toutes les parties électriques et mécaniques sont intégrées dans la gaine.
- Grande précision d’arrêt
- Rendement optimum, fiabilité et confort
- Adaptabilité de l’intérieur des cabines :
- Fabrication sur-mesure
- Dimensions cabine modulables
- Finition cabine à la demande
- Cabines dotées de protections fabriquées sur mesure et adaptées aux dimensions
- Portes verticales en option
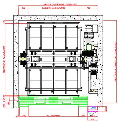
Exemple d'installation ascenseur sans local machinerie charge 3100 kg/41 personnes :